Pour atteindre la perfection…

Pour atteindre la perfection, depuis 30 ans sur le marché Suisse des équipements de cuisine professionnelle, nous avons du surmonter de nombreux défis. Durant ce parcours, nous avons acquis des connaissances, trouvé des solutions innovantes, grâce à l’expérience et les performances de notre « Team » et de nos partenaires commerciaux, avec lesquels nous collaborons au quotidien.
C’est cette expérience que nous vous proposons de partager lors de l’élaboration de votre projet afin d’aboutir à la solution parfaite …sans limite aux souhaits des Chefs !
  • Une étude et une planification de vos projets approfondies adaptées à vos besoins tant au niveau fonctionnalité que financier.
  • Une approche personnalisée avec croquis, plans de perspective et vue 3D (sur demande)… Dessiner, projeter, trouver des solutions et le faire avec style et professionnalisme est essentiel pour CTEC.

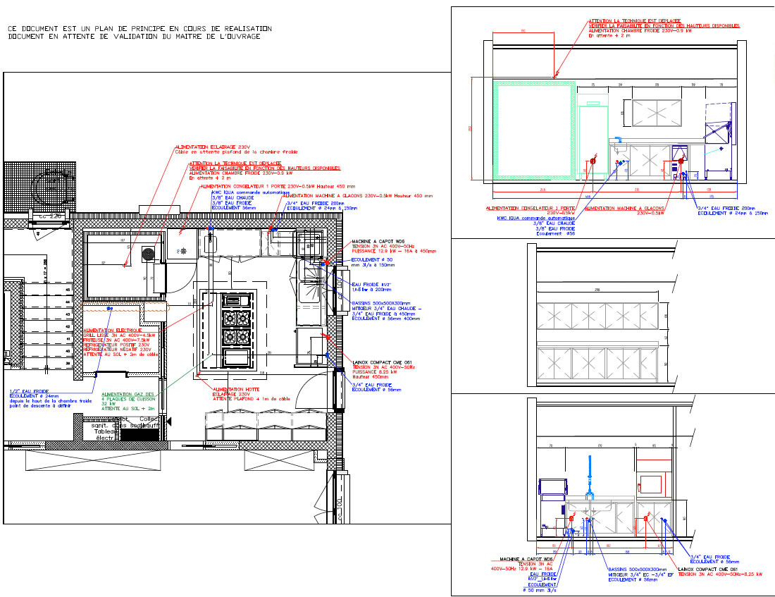
Plan d’execution

Un suivi attentif

Un suivi de mandat attentif avec une coordination auprès d’architectes en charge des mandats, des ingénieurs CVSE et des corps de métier prévus sur site, à travers des documents précis (bilan des fluides, plans d’exécution … ).

services

Mise en oeuvre

  • une mise en œuvre sur site avec une installation des équipements par une équipe technique d’expérience sous la direction d’un responsable de chantier qui assure le bon avancement des travaux et le respect des normes de sécurité en vigueur, tout en prenant toujours en considération le planning de fin de chantier.
  • Une mise en service des équipements avec formation culinaire auprès des équipes de cuisine et la mise en place de contrat de maintenance qui pérennise les installations et vous offre un confort de travail et en cas de demande d’intervention, un service après-vente opérationnel 7 jours sur 7.

Par ailleurs…

…nous vous offrons la possibilité d’accéder à nos divers produits d’hygiène destinés aux Grandes Cuisines (entretien des inox, produits lessiviels pour machines à laver, nettoyage des fours, désinfectant de contact…)

Pour les professionnels de la restauration, l’hôtellerie et les collectivités …

Nos locaux

C-TEC System SA
Route de Satigny 42
CP 711
1214 Vernier

Nous contacter

info@ctec-system.com
+41 22 939 10 50
+41 22 939 10 69